Springen Sie direkt: zum Textanfang (Navigation überspringen), zur Hauptnavigation, zur Hilfsnavigation, zur Suche, zur Kontaktinformation

zur Startseite des Stadtplanungsamtes Frankfurt am Main
stadtplanungsamt-frankfurt.de
DE | EN

Hilfsnavigation

  • Hilfe
  • Darstellung

Arten von Bebauungsplänen

Beispiel Qualifizierter Bebauungsplan, Ausschnitt Bebauungsplan Nr. 841 "Bockenheimer Landstraße / Liebigstraße", © Stadtplanungsamt Frankfurt am Main

Welche Festsetzungen in einem Bebauungsplan getroffen werden können, ist im Baugesetzbuch (§ 9 BauGB) bundesrechtlich abschließend bestimmt. Abhängig vom Regelungsinhalt (Festsetzungsdichte) werden verschiedene Arten von Bebauungsplänen unterschieden.


Qualifizierter Bebauungsplan

Ein qualifizierter Bebauungsplan nach § 30 (1) BauGB enthält mindestens Festsetzungen über

  • die Art und das Maß der baulichen Nutzung, 
  • die überbaubaren Grundstücksfläche und 
  • die örtlichen Verkehrsflächen. 

Darüber hinaus können weitere Festsetzungen getroffen sein.


Beispiel Einfacher Bebauungsplan, Ausschnitt Fluchtlinienplan Nr. F1701, © Stadtplanungsamt Frankfurt am Main

Einfacher Bebauungsplan

Ein einfacher Bebauungsplan nach § 30 (3) BauGB enthält im Vergleich zum qualifizierten Bebauungsplan nicht alle der oben genannten Mindestfestsetzungen. Die sogenannten Fluchtlinienpläne, die in Frankfurt vom späten 19. Jahrhundert bis in die 1960er Jahre erstellt wurden, sind solche einfachen Bebauungspläne. Sie wurden auf Grundlage des Preußischen Fluchtliniengesetzes beziehungsweise des Hessischen Aufbaugesetzes förmlich festgestellt und nach dem Inkrafttreten des Bundesbaugesetzes im Jahr 1960 als einfache Bebauungspläne übergeleitet. Sie enthalten nur Straßenfluchtlinien und Baufluchtlinien. Zu diesen Plänen gibt es keine textlichen Festsetzungen und keine Begründungen. Die Zulässigkeit von Vorhaben im Geltungsbereich eines einfachen Bebauungsplans richtet sich im Übrigen nach § 34 oder § 35 BauGB.


Simulation Opernturm, Beispiel für eine Baumaßnahme auf Grundlage eines vorhabenbezogenen Bebauungsplans, © Prof. Christoph Mäckler Architekten
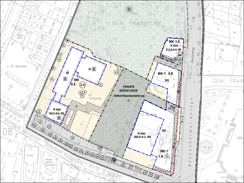
Ausschnitt vorhabenbezogener Bebauungsplan, Bebauungsplan Nr. 837Ä "Bockenheimer Landstraße / Rothschildpark - 1. vereinfachte Änderung", © Stadtplanungsamt Frankfurt am Main

Vorhabenbezogener Bebauungsplan

Das Instrument des vorhabenbezogenen Bebauungsplans wurde für die schnelle Realisierung von Bauvorhaben geschaffen. Bestandteil des vorhabenbezogenen Bebauungsplans nach §12 BauGB  ist der Vorhaben- und Erschließungsplan des Investors zu dessen Durchführung dieser sich mit dem Durchführungsvertrag verpflichtet.

Der Vorhabenträger hat einen Antrag auf Einleitung eines vorhabenbezogenen Bebauungsplanverfahrens zu stellen. Der Vorhabenträger muss bereit und in der Lage sein, das Vorhaben und die Erschließungsmaßnahmen durchzuführen.

Die Gemeinde hat über den Antrag zu entscheiden und dabei die öffentlichen und privaten Belange abzuwägen. Die Gemeinde muss frei in ihren Beschlüssen zu diesem Plan sein. Das Verfahren folgt demjenigen eines Bebauungsplanes. 

Vorhabenträger und Gemeinde schließen einen Durchführungsvertrag ab, in dem weitere Details geregelt werden. Insbesondere verpflichtet sich der Investor im Durchführungsvertrag das Bauvorhaben innerhalb einer festgelegten Frist zu erschließen und zu verwirklichen beziehungsweise verwirklichen zu lassen und die Planungs- und Erschließungskosten ganz oder teilweise zu übernehmen. Wird die Frist nicht eingehalten, soll die Gemeinde den vorhabenbezogenen Bebauungsplan aufheben. Der Wechsel des Vorhabenträgers bedarf der Zustimmung der Gemeinde.